Centro Cívico Santa Teresa
Espacio cultural en Armilla, Granada
Año: 2025
Tipo: Arquitectura, diseño interior
Área: 500m²
Estado: Construido
Fotografías: Imagen Subliminal
El proyecto surge como una respuesta directa a las necesidades de un barrio que reclamaba un lugar propio: un centro vecinal capaz de acoger actividades diversas, encuentros cotidianos y usos culturales abiertos a todos. La intervención entiende el edificio como una pieza social, cercana y reconocible, que se integra en su entorno y se activa desde la vida diaria del barrio.

La ubicación en esquina se convierte en una oportunidad para maximizar la entrada de luz natural. La envolvente de bloques de vidrio actúa como un filtro que tamiza la luz y protege la privacidad interior, generando una atmósfera serena y homogénea. En el interior, el uso de colores claros en paredes, techos y pavimentos refuerza esta condición luminosa, amplificando la luz y dotando a los espacios de una sensación de amplitud y calma.

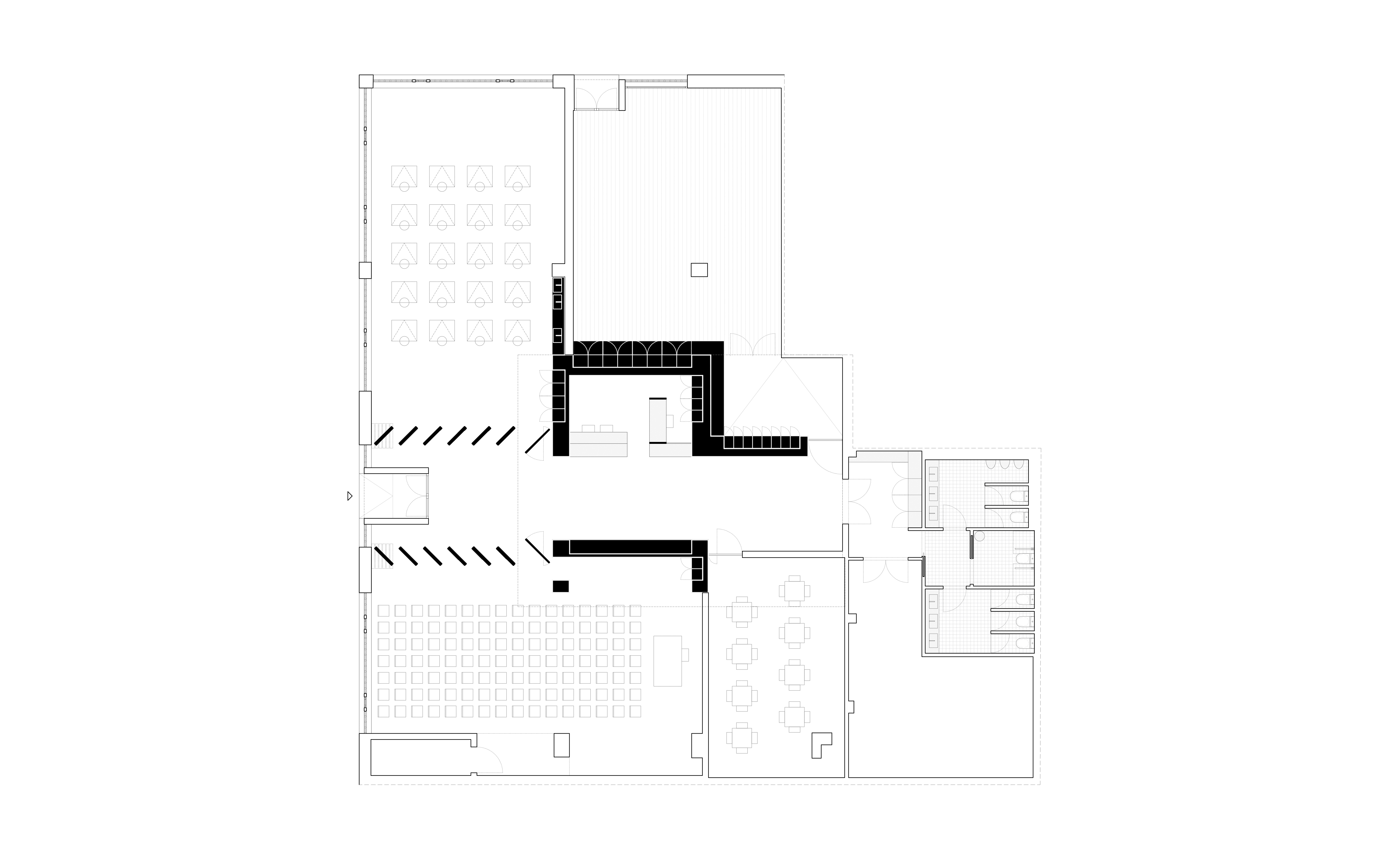
Funcionalmente, todo el programa se organiza en torno a un núcleo central que concentra instalaciones y servicios. Esta pieza compacta libera el resto de la planta y permite que los espacios se desplieguen de manera clara y flexible a su alrededor. Desde este centro se accede tanto a salas cerradas —como la sala taller o la sala de reuniones, pensadas para actividades más específicas— como a la posibilidad de generar un gran espacio continuo en forma de L, capaz de acoger usos de mayor aforo, como encuentros vecinales, exposiciones o actos colectivos, gracias a los paneles móviles descolgados.

La sala de baile incorpora un tratamiento acústico específico que permite el movimiento, la música y el uso intensivo sin interferir con el resto del edificio, integrando la técnica de forma discreta en la arquitectura.

