Un mueble pa tanto chisme
Residencial
Casa con almacenamiento, almacenamiento con casa
Año: 2023
Tipo: Arquitectura, Residencial
Área: 90m²
Estado: Construido
Fotografías: Imagen Subliminal
Hamacas. Sombrillas. Toallas. Neveras. Rastrillos. El aparataje playero de la familia española media supone un volumen físico considerable que ha de tener cabida en el comúnmente denominado “apartamento de la playa”, el cual, haciendo un barrido general, no engloba la tipología arquitectónica de mayores metros útiles disponibles. Los clientes, padres y ya abuelos, parten de la necesidad de habitar una vivienda que ha de ser mutante ante la visita anual de todos los integrantes de la familia, sin suponer eso un perjuicio en el reducido espacio de este su hogar durante la gran parte restante del año. Ha de responder pues, a las cualidades propias de una vivienda habitual, en cuanto a necesidades básicas, sumado a un requerimiento de almacenamiento propio del ambiente costero, y a la versatilidad de adaptarse a unas necesidades habitacionales estivales.



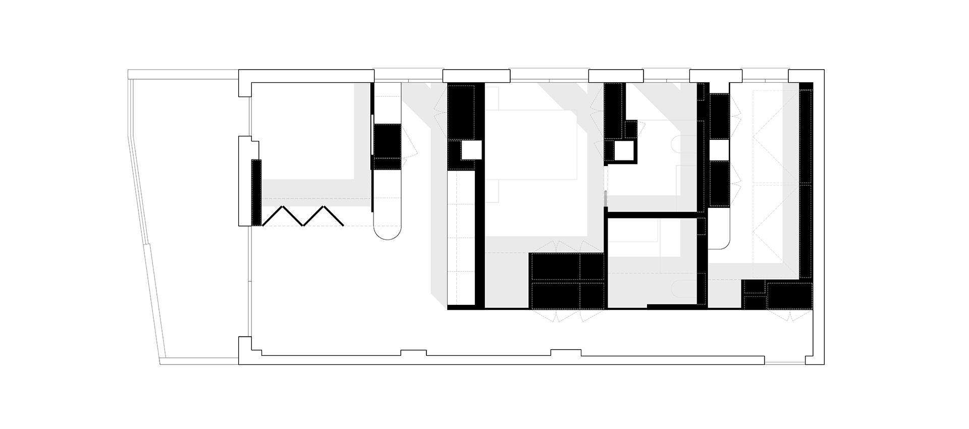
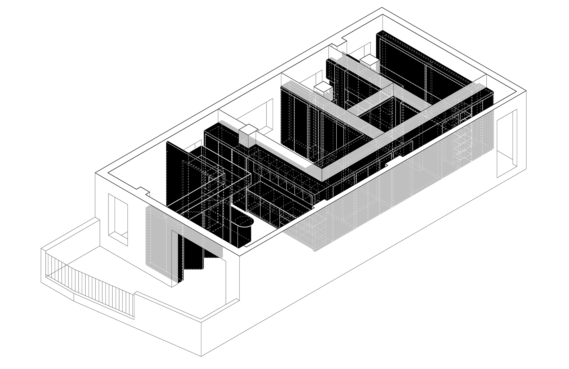
Partiendo de una premisa arquitectónica sin valor espacial ni constructivo, se decide dar la vuelta a la planta actual para plantear una vivienda volcada hacia el mar, donde salón y cocina se abren a la terraza de amplias dimensiones. La orientación sur hacia la costa de Velilla, Granada, asegura un aporte solar continuo a lo largo del día. Adaptándose a la estructura portante del edificio, el proyecto plantea una sucesión de habitación/baños/habitación/zona común que permite reducir al mínimo el impacto de los pilares presentes en la planta. De esta forma, el mobiliario planteado se amolda a las dimensiones de estos, rodeándolos, y conformando, junto con la franja en el pasillo, una caja habitable.


Las puertas ocultas potencian esta imagen, desdibujando el límite de la vivienda cuando la caja está cerrada. La altura del mueble, marcada a 2,20m, permite disponer de un cerramiento continuo de vidrio entre mueble y techo que aporta luz desde las aperturas perimetrales del apartamento al pasillo de entrada. Para asegurar el oscurecimiento en las diferentes estancias, se oculta en falso techo un sistema de estores mecanizados paralelos a los vidrios.









El salón realiza un gesto a la inversa del resto de la casa, liberando el paso hasta los 2,20m desde donde, en el cajón suspendido, descuelgan los cerramientos móviles que configuran una habitación para invitados con vistas al mar. Los tableros de madera contrachapada en roble y blanco que visten y trasdosan los armarios y paredes del mueble caja buscan transmitir una sensación de unidad conjunta, desdibujando interior e interior una vez atravesados los vanos de paso.

En una casa llena de puertas ocultas y de reducido espacio, la presencia de camas fijas imposibilita el uso diario de sus dos habitantes, por lo que se opta por plantear un sistema de camas plegables, en el caso del cuarto de los niños, y de puertas de librillo/abatibles, en el caso del cuarto de invitados. La primera estrategia libera el espacio para que los más pequeños puedan jugar en toda la habitación o utilizar el escritorio para estudiar en las largas tardes de verano, quedando las literas integradas en un paramento de 2m por 4m.