Parteluz
Retail
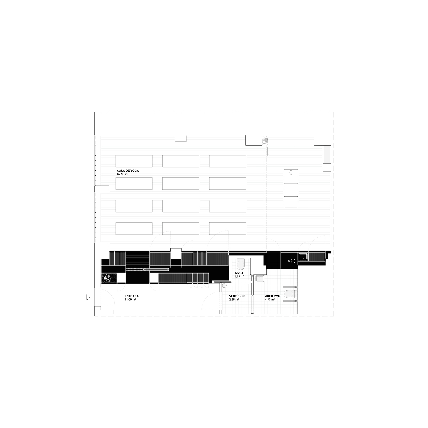
Centro de Yoga Vishnu en Granada
Año: 2024
Tipo: Arquitectura, Retail
Área: 90m²
Estado: Construido
Parteluz es la materialización de un artefacto de madera con varias voluntades. La primera, la de separar dos espacios, una recepción para los alumnos de este centro de yoga, y la sala principal donde se realizan las clases. La segunda, un mueble bilateral para almacenar el material necesario para realizar las diferentes actividades: taquilla, zapatero, estante para esterillas, jardinera, lavabo, camilla de masaje, banco de espera, sillas. Y la tercera, y quizás más importante, la de unificar visual y lumínicamente el conjunto.
Partiendo de un local oscuro, obsoleto, reliquia de un uso anterior, se ejecutan unas nuevas aperturas conectadas puerta-vidrio superior-fachada de UGlass, que aportan luz al interior a la vez que mantienen la privacidad de los usuarios. El uso de la madera laminada con acabado natural de Garnica favorece la luminosidad del espacio, reflejando los matices de sombras pasajeras que recorren la calle.





"La zona de recepción conecta físicamente la entrada con el interior de la sala mediante la puerta corredera, y visualmente mediante los vidrios superiores."






"El mueble está pensado para optimizar al máximo el almacenamiento del material deportivo usado en las clases."

"Las cortinas permiten dividir el espacio para generar un pequeño gabinete de masajes, con un recorrido de acceso alternativo a través del baño accesible/vestuario."




